Maneely & Co

Thomas Street Centre, Thomas Street Dungannon, BT70 1HN

Commercial Property For Sale

£425,000

Print additional images & map (disable to save ink)

Photo 1 of Thomas Street Centre, Thomas Street, Dungannon

Telephone:

028 8772 7799

View Online:

www.maneely.com/1057907
Prime Town Centre Opportunity

Key Information

Address Thomas Street Centre, Thomas Street Dungannon, BT70 1HN
Price Last listed at Offers over £425,000
Style Commercial Property
Status Sale Agreed

Additional Information


Maneely & Co - Mid Ulsters Leading Commercial Agent

FEATURES

-Excellent Town Centre Parade of Commercial Units
-Eight well Presented Ground Floor Retail/Office Units
-Extensive First Floor Office Accommodation
-Prime, Highly Visible Location with Strong Passing Footfall
-Free On Street Parking Directly to the Front


ADDITIONAL INFORMATION

Thomas Street Centre presents an excellent opportunity to acquire this prominent town centre commercial investment in one of Dungannon’s busiest and most established locations. Positioned on Thomas Street, the property benefits from high visibility, strong passing footfall, and convenient free on-street parking directly to the front, making it an attractive destination for both businesses and customers alike.

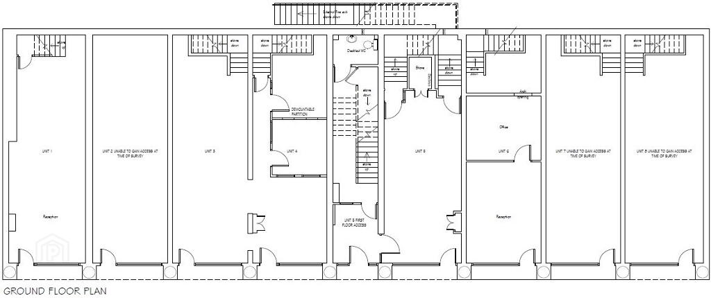
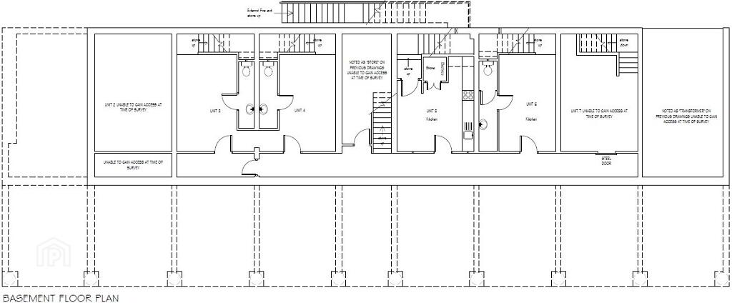
The property comprises an impressive parade of eight ground floor retail/office units, each benefiting from additional basement accommodation. This added space enhances the functionality of the units and makes them particularly appealing to a wide range of occupiers. The ground floor units enjoy excellent frontage and accessibility, providing a strong and reliable income base. There are a range of tenants in the ground floor units including travel agent, hairdressers, retail shop, bureau de change, estate agent & beautician. 

Above, the property offers extensive first-floor office accommodation, presenting significant future potential. The first floor could be reconfigured into smaller office suites to increase rental yield, or alternatively converted into residential apartments, subject to the necessary planning permissions. This flexibility significantly enhances the long-term value and adaptability of the investment.

The property currently produces an annual rental income of approximately £35,000. With full occupancy, this income has the potential to increase to in excess of £65,000 per annum, offering an excellent return on investment and strong income growth.

This property represents an outstanding opportunity for investors seeking a high-yield town centre asset, as well as for owner-occupiers of the first floor, who would benefit from the rental income generated by the ground floor commercial units.

Thomas Street Centre is a rare opportunity to acquire a well-located, income-producing property with substantial upside potential in the heart of Dungannon.

 

------------------------------------------------------------------------------------------------------------------------

Thinking of Selling or Renting? 

FREE VALUATION!

If you are considering the sale or lease of your own property, we are delighted to offer a FREE SALES or RENTAL VALUATION, without obligation. Get in contact today and we will be happy to help & advise you!

(028) 8772 7799 |  info@maneely.com

-------------------------------------------------------------------------------------------------------------------------


MISREPRESENTATION CLAUSE

Maneely & Co Ltd gives notice to anyone who may read these particulars as follows. These particulars do not constitute any part of an offer or contract. Any intending purchasers or lessees must satisfy themselves by inspection or otherwise to the correctness of each of the statements contained in these particulars. We cannot guarantee the accuracy or description of any dimensions, texts or photos which also may be taken by a wide camera lens or enhanced by photo shop All dimensions are taken to the nearest 5 inches. Descriptions of the property are inevitably subjective, and the descriptions contained herein are given in good faith as an opinion and not by way of statement of fact. The heating system and electrical appliances have not been tested and we cannot offer any guarantees on their condition.

  • Maneely & Co Ltd

    Maneely & Co

    028 8772 7799

Photo Gallery

Photo 1 of Thomas Street Centre, Thomas Street, Dungannon Photo 2 of Thomas Street Centre, Thomas Street, Dungannon Photo 3 of Thomas Street Centre, Thomas Street, Dungannon Photo 4 of Thomas Street Centre, Thomas Street, Dungannon Photo 5 of Thomas Street Centre, Thomas Street, Dungannon Photo 6 of Thomas Street Centre, Thomas Street, Dungannon Photo 7 of Thomas Street Centre, Thomas Street, Dungannon Photo 8 of Thomas Street Centre, Thomas Street, Dungannon Photo 9 of Thomas Street Centre, Thomas Street, Dungannon Photo 10 of Thomas Street Centre, Thomas Street, Dungannon Photo 11 of Thomas Street Centre, Thomas Street, Dungannon Photo 12 of Thomas Street Centre, Thomas Street, Dungannon Photo 13 of Thomas Street Centre, Thomas Street, Dungannon Photo 14 of Thomas Street Centre, Thomas Street, Dungannon Photo 15 of Thomas Street Centre, Thomas Street, Dungannon

Location

Visit www.maneely.com for further details.